Modernes Stadthaus
Modernes Stadthaus
Bahnhofsareal in Schwäbisch Hall
Wir verwirklichen Ihre Träume.
modern. hochwertig. nachhaltig. beste Lage.
Haben wir Ihr Interesse geweckt, vereinbaren Sie einen Beratungstermin mit uns und lassen Sie sich gerne vormerken.
Telefon 0791 9 70 60 10
info@otterbach-wohnbau.de
Details
AdresseDr.-Anna-Reiff-Strasse 1
74523 Schwäbisch Hall
Lage Beschreibung
Das neu konspirierte Bahnhofsareal liegt im Herzen von Schwäbisch Hall.
Gehobene Ausstattung der Wohnungen
+ elektrisch betriebene Außenjalousien im Wohn- u. Essbereich
+ Panorama-Schiebetür im Wohnbereich
+ alle Wohnungen mit Balkon
+ hochwertiger Parkettboden
+ moderne Markenfliesen
+ formschöne Handtuchheizkörper im Bad
+ bodenebene Dusche u. Echt-Glas-Duschabtrennung
+ Videogegensprechanlage mit Farbmonitor
+ massive Wohnungseingangstür mit 3-fach Sicherheitsverriegelung (hoher Schallschutz)
+ professionelle Außenanlagengestaltung
u.v.m.
Effiziente Ausstattung des Gebäudes
+ Fernwärme
+ Fußbodenheizung
+ 3-fach verglaste Fenster
+ Vollwärmeschutz
+ Stufenloser Zugang, Haus mit Aufzug
+ Tiefgaragen Stellplatz gegen Aufpreis.
Einheiten im Objekt Schwäbisch Hall, Bahnhofsareal

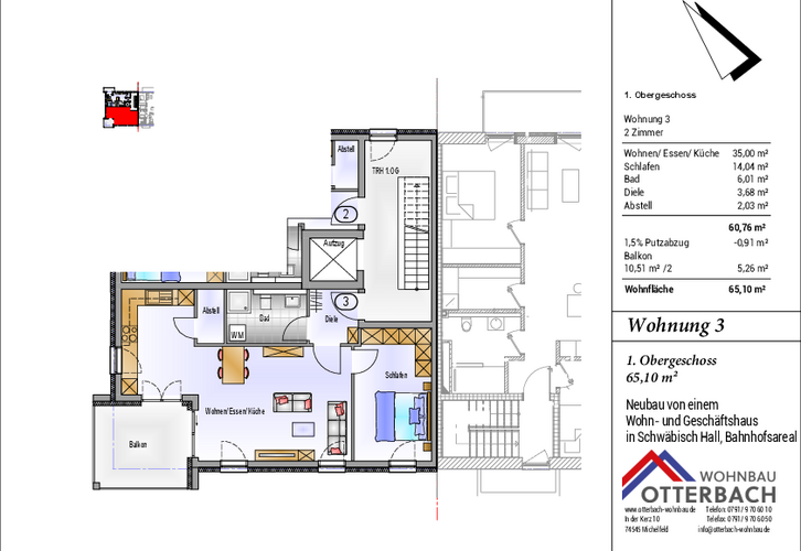
2-Zimmer-Wohnung (2.OG) mit Balkon
Schwäbisch Hall, Bahnhofsareal, Wohnung 5

2-Zimmer-Wohnung (1.OG) mit Balkon
Schwäbisch Hall, Bahnhofsareal, Wohnung 3
